Cala d`OrModerno piso totalmente reformado con gran terraza a pocos minutos andando del mar en Cala d`Or
Descripción
Este piso modernizado está situado en una zona muy solicitada de Cala d’Or. El centro de la ciudad con sus numerosos restaurantes, cafés y tiendas está a sólo unos minutos a pie. La hermosa playa de arena de Cala Esmeralda y otras dos pintorescas bahías también están muy cerca.
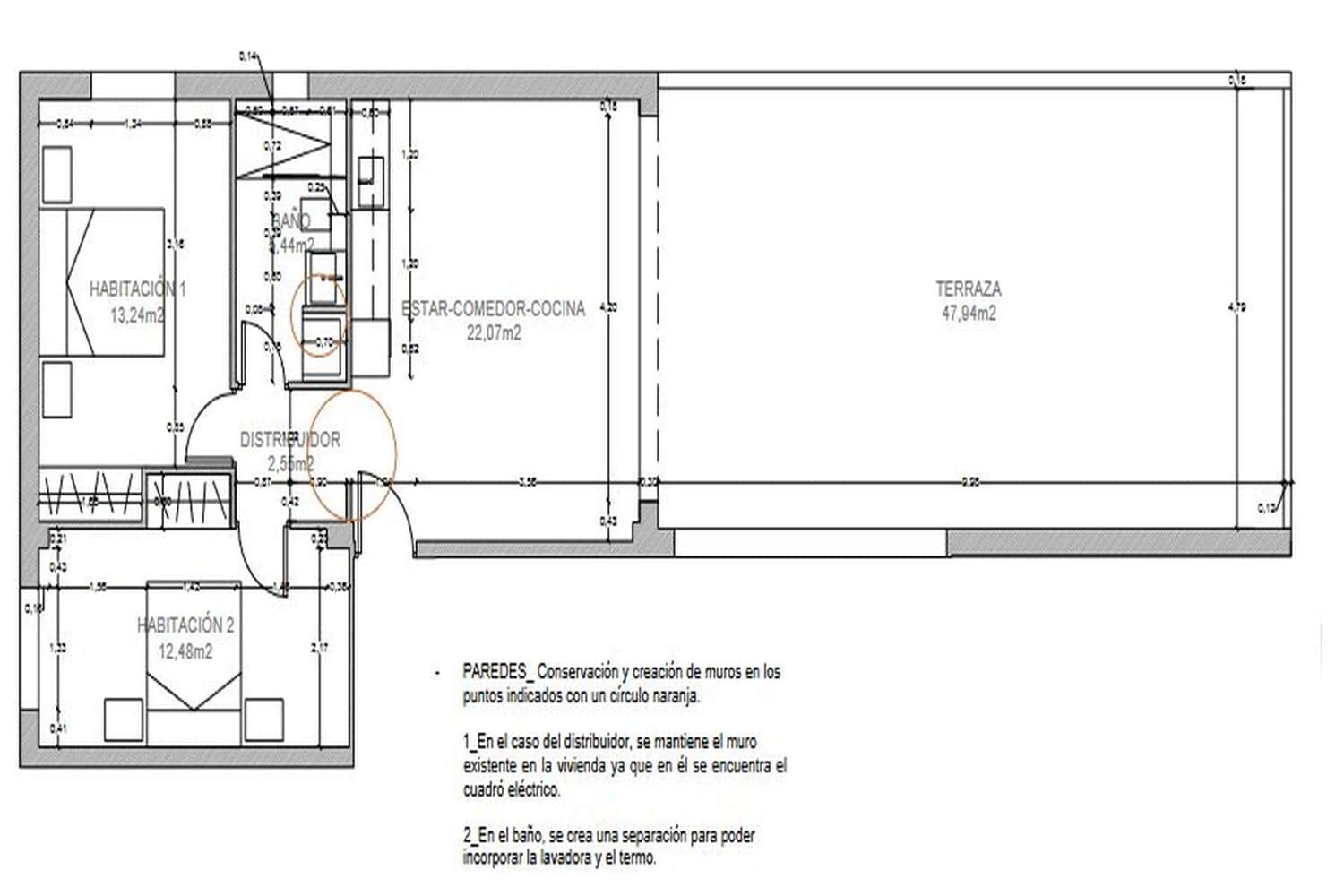
El piso dispone de un salón-comedor diáfano y luminoso, dos dormitorios y un cuarto de baño. Un punto a destacar es la amplia terraza, que crea las condiciones ideales para un relajado salón o zona chill-out. Cree aquí su propio refugio personal y disfrute de relajantes horas al aire libre.
También tiene la opción de adquirir la unidad residencial vecina a través de nosotros. Estaremos encantados de proporcionarle más detalles sin compromiso.
Salón-comedor, 2 dormitorios, baño
Eficiencia energética
Oficina
Cláusula de responsabilidad e intermediación

Descargue el catálogo de inmuebles “HOMEPAGES” de Minkner & Bonitz aquí. En 124 páginas encontrará las ofertas inmobiliarias actuales.


Deutsch
English