Ses SalinesCasa adosada moderna de obra nueva con piscina y terraza panorámica en la azotea en una zona prime de Ses Salines
Descripción
A las afueras del codiciado pueblo de Ses Salines se construye esta casa de pueblo de alta calidad que cumple con los más altos estándares. Elementos arquitectónicos tradicionales mallorquines se combinan armoniosamente con un diseño moderno, creando un ambiente elegante y acogedor. Espacios amplios y luminosos, junto con materiales de primera calidad, garantizan una experiencia de vida excepcional.
Un encantador patio da acceso a la planta baja, donde le espera un espacio abierto de salón-comedor con cocina integrada. Los materiales naturales y los tonos claros crean una atmósfera luminosa y relajada. Una chimenea tradicional aporta calidez y confort en los días más frescos. Grandes puertas correderas de cristal permiten una abundante entrada de luz natural y conectan perfectamente con el exterior. En esta planta también se encuentran un aseo de invitados, un garaje y un práctico lavadero.
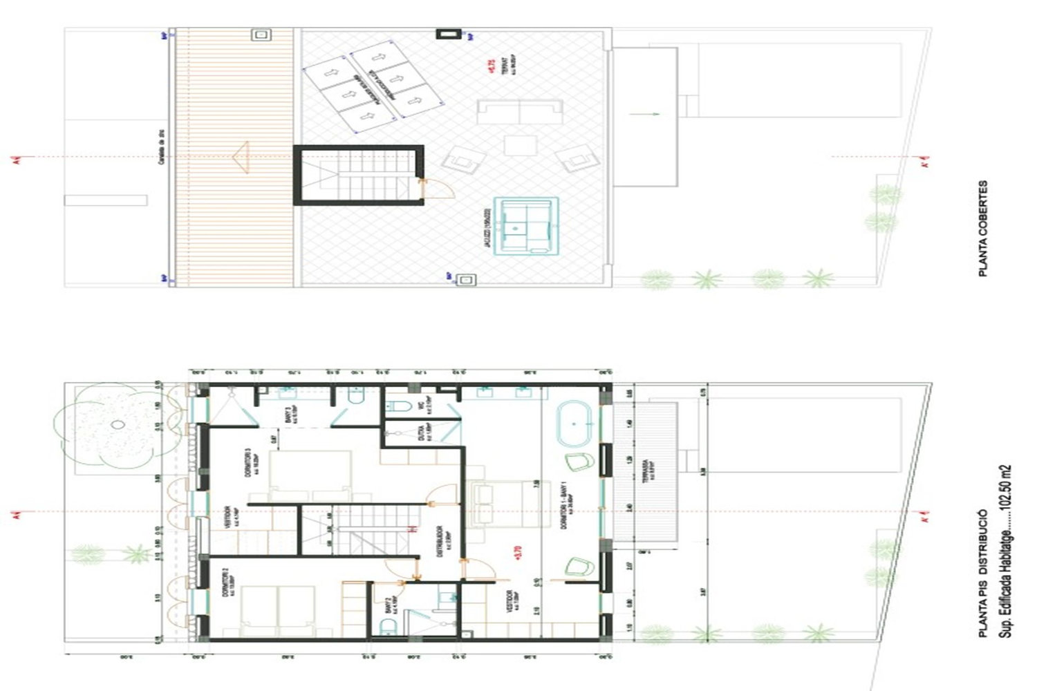
En la planta superior hay 3 dormitorios, todos con baño en suite. La suite principal dispone de vestidor y una terraza privada.
Otro punto destacado es la terraza en la azotea de unos 64 m², con bonitas vistas sobre los tejados de Ses Salines. Ya está prevista la preinstalación para un jacuzzi: el lugar perfecto para crear una zona chill-out privada.
El sótano espacioso ofrece múltiples opciones de uso: ya sea como bodega, gimnasio, cine en casa o zona wellness con sauna, un lujo poco común en esta ubicación.
El patio se ha diseñado con especial cuidado, incorporando plantas autóctonas como naranjos, buganvillas y lavanda, que refuerzan el ambiente mediterráneo. La piscina de unos 18 m² con solárium invita al relax y al disfrute.
Entre las comodidades adicionales destacan la calefacción por suelo radiante y el aire acondicionado, que garantizan el máximo confort durante todo el año.
Planta baja: Salón-comedor, cocina, aseo de invitados, lavadero, garaje
Primera planta: 3 dormitorios, 3 baños en suite, vestidor
Sótano: por ejemplo: bodega, zona de fitness, cine en casa, sauna
Eficiencia energética
Oficina
Cláusula de responsabilidad e intermediación

Descargue el catálogo de inmuebles “HOMEPAGES” de Minkner & Bonitz aquí. En 124 páginas encontrará las ofertas inmobiliarias actuales.


Deutsch
English